深圳市南山白石洲旧改
深圳市南山白石洲旧改

石洲,位于深圳市南山区东部的沙河街道,作为深圳最大的城中村之一,拥有几乎深圳市区最集中最大规模的农民房,很多从外地来深圳的人都有过一段或长或短的在白石洲生活的记忆,它不仅因为出租屋众多、住房相对便宜而闻名,还因为它的地段特殊,它位于深南大道两侧,主干道深南大道交通四通八达,还有华侨城高档社区与之比邻而居,西边有名商高尔夫球会、沙河高尔夫球会,南邻深圳湾超级总部基地。


预备拆迁的 1600 多栋出租屋为许多“闯深圳”的人们提供便宜方便的居所。有人还粗略计算过,从 90 年代到现在,白石洲至少容纳过 300 万人次,但同时,白石洲的脏乱差也是有目共睹,过道狭窄,电线在这里仿若藤蔓,肆意生长,充满着消防隐患,白石洲的火灾发生次数逐年攀升,环境、治安、消防、卫生等都存在较大问题,给城市管理及生活居住都带来不便。随着城市发展、转型及功能的逐步提升,白石洲的旧改已是刻不容缓,通过改造改善片区居住环境,提高居民生活质量,是大家都乐意见到的事。

旧改根据《2014年深圳市城市更新单元计划第二批计划》显示:白石洲旧改项目正式名称为“沙河五村城市更新单元”,其申报主体为“深圳市白石洲投资发展股份有限公司”,拟拆除重建用地面积达到惊人的45.9万平方米。拟更新方向为居住、商业等功能。项目计容总建面约350万㎡,除各种配套和回迁外,绿景可开发面积约237万㎡,其中估计自持面积80万㎡,估计销售面积157万㎡。



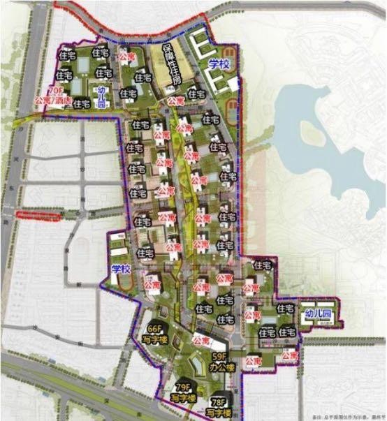
根据发布的白石洲规划草稿显示,沙河五村城市更新项目(即白石洲旧改)更新单元用地面积约48.01万㎡,拆除用地面积约45.95万㎡,开发建面约30.38万㎡,改造后计容积率总建面高达347.96万㎡,其中住宅125万㎡,商业、办公及旅馆业104.5万㎡,商务公寓112万㎡,公共配套设施6.5万㎡,容积率11.5。项目共由31栋49-65层住宅,21栋公寓,3栋66-79层超高层写字楼,1栋59层办公楼组成。

项目周边环绕着深圳湾超级总部基地、后海总部基地、蛇口前海自贸区、福田CBD等核心区域以及深圳主要总部基地,是深圳城市和产业发展主轴交汇处。白石洲城市更新项目东临深圳传统豪华区华侨城片区,西接高新技术云集的南山高新技术园,紧邻深圳城市主轴线深南大道,横跨深南大道,毗邻科技园、世界之窗、深圳湾公园等深圳地标,处于深圳核心发展区域福田区与南山区的交接节点。

同时项目周边环绕着深圳湾超级总部基地、后海总部基地、蛇口前海自贸区、福田CBD等核心区域以及深圳主要总部基地,是深圳城市和产业发展主轴交汇处。不仅项目本身的体量大,物业价值也非常高。

1、2005年,深圳市和南山区政府开展白石洲旧村改造研究,白石洲旧改正式拉开序幕;
2、2012年8月由南山区委区政府领导带队成立沙河五村城市更新领导小组;
3、2013年10月,沙河五村北区范围内完成业主更新意愿书签署工作;
4、2014年,白石洲旧改正式列入深圳城市更新名单;
5、2016年6月,股份公司50万平米集体用地完成确权;
6、2016年12月,沙河五村更新项目专项计划通过深圳规土委更新局业务会审查;
7、2017年6月,沙河街道沙河五村城市更新单元规划(草案)正式公示;
8、2017年年底,绿景白石洲城市更新办公室成立;
9、2018年12月,白石洲改造专项规划已于获得市规土委正式批复,按照政策规定,专项规划批复两年内必须要完成签约,清租收整、申报实施主体、房屋拆除等工作;
10、2019年3月 完成集体物业拆迁补偿协议签订;
11、2019 年 5 月,最新个人物业确权已经接近 90%
12、 2019 年 6 月,启动拆迁补偿协议签订

住宅:125万㎡(含人才住房和保障性住房 5 万㎡);
公寓:112 万㎡ ;商业+办公+酒店:104.5 万㎡ ;
公共配套:6.45 万㎡(学校 3 所、幼儿园 57 班 )
交通规划:新增地铁 20 号线、29 号线,白石洲为枢纽站。
地下商业建筑面积100450㎡;地下市政交通设施25500㎡
开发周期约8-10年,共分三期开发


补偿标准
按月补偿租金:首层每月100 元/㎡,二层及以上每月60元/㎡的搬迁费用(一次性发放 6 个月),回迁后补偿装修费用:住宅 2000元/㎡。

赔偿住宅户型(可按户型选择购买面积)
小区住宅户型,分别为55㎡(此户型仅限有一套住宅指标的非本地原村民选择)、80㎡、100㎡、120㎡、160㎡,180㎡、260㎡、260㎡(复式)户型图如下:












项目优势以及签约流程



购买人不用社保,不占用名额,可参考大冲片区旧改收益,目前签约率已达90%以上,深圳市重点工程,有旧改之王之称的绿景超2000亿投资白石洲项目注资上市公司,该项目是深圳最大城中村旧改项目,其区位优势非常明显,毗邻深南大道以及科技园,可谓寸土寸金。
在18年6月时白石洲的小产权房交易市价已达4.2万元/平方米,到2020年5月份已经达到7.2万元/平,到2020年7月份已经达到8.3万元/平,到2020年12月份会达到X万元/平到2021年12月份会达到多少万呢?按合同开发商承诺6年内交房 (仅供参考) ,2026年7月份又会是多少呢?

绿景中国地产行政总裁兼执行董事唐寿春等管理层曾表示,白石洲项目计划将进行四期滚动开发,可售面积预计为180万平方米,预计在2023-2030年进入销售、现金回笼阶段。其中,白石洲项目一期预计在2021年就能开工!
目前区域的周边基本没有新房,二手房价则多数集中在 10-19万/平之间。
科技园片区,大概13~19万,白石洲的西边的老房子,比较便宜,大概10万左右,白石洲的右边的豪宅区,大概15~18万,以白石洲的定位,旧改完成以后应该是超越大冲的片区,目前大冲均价18万/平米,就算大冲往后6年不涨价,6年后绿景第一期建成备案价至少也要十五万往上,现在购买的价位就相当于购买了原始股!
-
- 京剧大师袁世海去世时那些珍藏的记忆,架子花脸铜锤唱
-
2026-04-02 07:46:28
-
- 城建集团攻城略地的背后,武汉国企改革的进与退
-
2026-04-02 07:44:14
-
- 吴秀波为什么要和小三同归于尽?
-
2026-04-02 07:42:00
-
- 沈傲君:被前男友辜负10年,30岁孤苦伶仃,后来嫁给乾隆的后裔
-
2026-04-02 07:39:45
-
- 警星闪耀 | 铁金山:坚守警犬训导岗位37年的挺拔青“松”
-
2026-04-02 07:37:31
-
- 兰陵王高长恭既是宗室,又是名将,为何被北齐后主赐死?
-
2026-04-02 07:35:16
-
- 10款适合摩旅又兼顾家用的大踏板摩托,配置丰富性价比高
-
2026-04-02 07:33:02
-
- 事实证明,赵奕欢为了5000月薪“而脱掉的衣服”,可能再也穿不上
-
2026-04-02 07:30:48
-
- 年销量翻十倍!“小电驴”海外待爆,谁先出海谁赚钱?
-
2026-04-02 07:28:34
-
- 霉霉和球星男友高调恋情被曝只是一纸“合同”,本月将分手??
-
2026-04-02 07:26:19
-
- 9月17日最新中秋节早安祝福图片,2024中秋节祝福语,中秋节快乐
-
2026-04-02 07:24:04
-
- 特斯拉中国工人和福耀玻璃美国工人,他们的工资,谁更胜一筹?
-
2026-04-02 07:21:50
-
- “祝婉玲”黄慧颐:为了爱情放弃“事业”,结果换来一个人的独处
-
2026-04-02 07:19:36
-
- 起点高,就业好!海南外国语职业学院2019年高职招生简章来啦~
-
2026-04-02 07:17:21
-
- 猜谜识字,学会这150个字谜,让孩子轻松学汉字
-
2026-04-02 07:15:07
-
- 费翔妈妈毕丽娜:横插一脚是我的错,晚年为儿子的婚事苦恼
-
2026-04-02 07:12:53
-
- 封面女孩大赛冠军——张予曦
-
2026-04-02 07:10:38
-
- 三兄妹破译校园系统网售空白水卡,非法获利上千万元,2000多家单位上当
-
2026-04-02 07:08:24
-
- 越高越好吗?关于手机屏幕色域,你知道多少。
-
2026-04-01 19:17:55
-
- 一直不会用金蝶,狠下心三天整理出一份金蝶KIS操作流程,收藏!
-
2026-04-01 19:15:40



前妻终于说出离婚的真相(跟前妻离婚后兄弟说出了真相)
80年代,洪学智的女儿洪醒华,与养母一家合影,曾流落民间12年
名模潘娇娇的那些喷血写真 潘娇娇简介
中国十大航空空姐:南航旗袍装,川航火辣热情,你最钟意哪家?
杨幂1分11秒视频被疯狂转发 女主角到底是谁
结婚13年,41岁孙俪和44岁邓超离婚?助理发长文回应了
五本古言:权势滔天的男主对女主强取豪夺,终及一生都求而不得
5本年代军婚文,女主重生嫁给兵哥哥,独得一世宠爱,甜蜜幸福
九本女主是继室的古言:《咸鱼继母日常》《继室夫人的合离计划》
刘师长在老山喊出“战士在前方流的是血,不是水”后,提拔被取消